Datenerfassung für Gebäude und 3D Darstellungen
Wir haben uns auf folgende Inhalte spezialisiert:
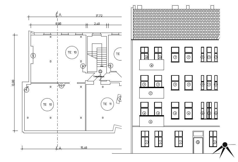
Gebäudeaufmaß, 3D Gebäudedarstellungen, 3D Innenaufmaß
3D Modelle mit und ohne Texturen
Innenaufmaße sowie Aufmaße zur Abgeschlossenheit
Grundrisspläne, Schnitte, Ansichten
Fassadenpläne
Notfallpläne
Vermessung von Reinigungsflächen
Grundflächenermittlung in Industrie, Gewerbe und Privathaushalt
Wohnungsgrundrisse für Immobilien Makler, Eigentümer, Käufer
Sie benötigen ein maßstäbliches 3D Modell eines Bestandsgebäudes für Ihre Planungen wie zum Beispiel, Abschattungen, Visualisierungen, Planung von Baumaßnahmen und weiterem? Wir ermitteln die erforderlichen Daten entweder klassisch tachymetrisch, mit einem 3D Laserscanner oder auch photogrammetrisch mit einer Drohne. Dazu nutzen wir auch ein Netzwerk externer Spezialisten.
Wo Gebäude und 3D Modelle eingesetzt werden: Stadtplanung, 3D-Stadtmodelle, Architekturvisualisierung, 3D Fassadenaufmaß, Geo-Web-Marketing (virtuelle Stadtpläne, Routensoftware usw.), Marketing, Werbung, Produktvisualisierung, Filmindustrie, Facility Management
Haben Sie Fragen zu unseren Dienstleistungen rund um Gebäude und 3D dann schreiben Sie uns eine E-Mail oder rufen Sie uns an.

Innenaufmaße nach DIN 277, WoFlV und Aufmaß zur Abgeschlossenheit
Wir ermitteln alle notwendigen Daten zur Berechnung der nutzbaren Raumflächen, Bruttogrundflächen, Nettogrundflächen usw. nach geltenden Vorschriften. Sprechen Sie mit uns über Ihre Wünsche und Zielsetzungen. Wir erstellen Ihnen gern ein Angebot.
weiter zu:
Bestandsvermessung
Bauvermessung
weitere Leistungen
